Piekny domek w spokojnej okolicy/3km od Ołtaszyna
Karwiany gm. Żórawina Pokaż na mapie ›
Dodane: Poniedziałek, 24 Listopad, 2025 14:09
899 000 zł
6969 zł/m2
Szczegóły ogłoszenia
- Kategoria: Domy / Sprzedaż
- Powierzchnia:129 m2
- Liczba pokoi:5 i więcej pokoi
- Rynek:Pierwotny
- Rok budowy:2024
- Sprzedaż:Pośrednik
- Cena: 899 000 zł / 6969 zł/m2
Opis oferty
Osiedle domów jednorodzinnych w zabudowie szeregowej w podwrocławskich Karwianach. Funkcjonalne i przestrzenne domy jednorodzinne dwukondygnacyjne o podwyższonym standardzie wykonania, położone są na wydzielonych i w pełni uzbrojonych działkach.Architektura domów łączy funkcjonalność z nowoczesnością, a zastosowane rozwiązania technologiczne gwarantują minimalizację kosztów utrzymania. Kameralna zabudowa w połączeniu z własnym ogrodem to gwarancja wypoczynku i przestronności.
Bliskość południowej granicy Wrocławia zapewnia szybki i łatwy dojazd do centrum.
Dodatkowym atutem jest niedalekie sąsiedztwo najważniejszych węzłów komunikacyjnych oraz Centrum Handlowego Bielany.
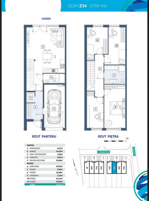
Prezentowany dom ma powierzchnię użytkową 129 m2
PARTER:
1. Przedsionek – 6,21m2
2. Garaż-16,23m2
3. Pomieszczenie techniczne 1,58m2
4. Toaleta – 3,67m2
5. Salon+ kuchnia-34,46m2
PIĘTRO:
6. Korytarz– 10,29 m2
7.Pokój 9,96 m2
8.Pokój – 16,28m2
9.Łazienka– 7,12m2
10.Pokój – 12,11 m2
11. Pokój- 10,90m2
Stan deweloperski:
-Okna w pakiecie trzyszybowym są standardem w domach energooszczędnych i pasywnych. To nowoczesne rozwiązanie technologiczne sprawia, że współczynnik przenikania ciepła jest bardzo niski, wpływając na obniżenie kosztów ogrzewania.
-Pustaki ceramiczne Porotherm produkowane są z gliny. Glina stanowi naturalny, ekologiczny i trwały surowiec, stosowany w budownictwie od wieków. Jej zaletą jest utrzymywanie korzystnego mikroklimatu we wnętrzach budynków oraz brak szkodliwego wpływu na zdrowie mieszkańców.
-Materiały ceramiczne mają dużą stateczność cieplną, tzn. dobrze akumulują ciepło i powoli oddają je otoczeniu. Dzięki tej cesze w naturalny sposób pomagają utrzymać optymalną temperaturę zarówno zimą, jak i latem. Mają też właściwości paroprzepuszczalne – przez ceramikę swobodnie przenika para wodna, zapewniając naturalną regulację wilgotności w pomieszczeniach.
-Bloczki silikatowe produkowane są wyłącznie z naturalnych składników: piasek, wapno i woda. Jako produkt ekologiczny nie emituje szkodliwych związków i odznacza się najmniejszą promieniotwórczością naturalną wśród innych materiałów budowlanych.
-Ocieplenie styropianem grafitowym 15cm
Czym różni się styropian grafitowy od zwykłego? W procesie produkcji do tego pierwszego dodawany jest grafit, który oprócz zmiany koloru styropianu zapewnia podwyższoną izolacyjność termiczną.
-Dachówka ceramiczna
Dachówki Orea 9 swoją płaską i gładką powierzchnię zawdzięczają specjalnej technologii produkcji. Proces wytwarzania dachówki – każda sztuka wypalana jest w oddzielnej formie – zapewnia doskonały, płaski kształt, a także najwyższą trwałość produktu. Orea 9 jest dostępna z pełną gamą dodatków ceramicznych, które umożliwiają prawidłowe wykonanie dachu od strony technicznej oraz pomagają wykończyć w estetyczny sposób każdy detal. Co ważne, dzięki dostępności dachówki połówkowej oraz połówkowych dachówek szczytowych, można układać połać na dwa sposoby: tradycyjnie oraz w ułożeniu mijankowym, z przesunięciem o połowę w kolejnych rzędach.
-Pompa ciepła firmy De Dietrich
Pompa ciepła typu powietrze/woda, która zapewni Tobie szybki zwrot nakładów inwestycyjnych, konkurencyjną cenę i proste działanie. De Dietrich stworzył to, o czym marzyłeś. Odkryj Alezio S V200, rozwiązanie kompaktowe, oszczędne i ekologiczne. Idealne dla ogrzewania i chłodzenia, w budynkach nowych jak i modernizowanych. Przejdź do istoty, która tkwi w powietrzu – do energii cieplnej. Alezio S V200 – dopasowane do programu PROSUMENT i Czyste Powietrze.
-Rolety zwiększają bezpieczeństwo domów oraz stanowią dodatkową barierą termiczną i akustyczną. W lecie poprzez regulację dostępu światła, zapewnią większy komfort termiczny w domu, w zimie ograniczą straty ciepła.
-Pełne zagospodarowanie terenu wraz z drogami dojazdowymi
-Niezależna konstrukcja, styropian o podwyższonych właściwościach cieplnych
-Doprowadzone wszystkie media
W tym gaz, prąd, woda, kanalizacja
-Schody
Domy budowane na niezależnych ścianach
-Większe bezpieczeństwo konstrukcyjne domów szeregowych, wyższa izolacyjność akustyczna między sąsiadującymi domami.
-Nowoczesna architektura
Projekt łączy nowoczesną funkcjonalność z zastosowaniem sprawdzonych rozwiązań technologicznych co gwarantuje minimalizację kosztów utrzymania.
Dogodna lokalizacja
Szybki i łatwy dojazd do centrum Wrocławia, bezpośrednie sąsiedztwo najważniejszych węzłów komunikacyjnych oraz Centrum Handlowego.Zapraszam do kontaktu w celu przygotowania oferty / umówienia się na prezentacje – Kupujący nie płaci prowizji.
Zapewniam
- profesjonalną obsługę, gwarantowaną wieloletnim doświadczeniem w branży nieruchomości-możliwość bezpłatnej rezerwacji apartamentu
- kompleksowe wsparcie na każdym etapie transakcji
- gwarancję bezpiecznego zakupu
- oszczędność czasu
-pomoc w uzyskaniu kredytu na najlepszych warunkach
- kompleksowe doradztwo
Ania Kamuda- Doradca klienta
tel. 535 - pokaż numer telefonu -
@
Nr oferty KAR/Z14_/AK
Zamieszczone na naszych stronach informacje nie stanowią oferty w rozumieniu Kodeksu Cywilnego, a dane w nich zawarte mają jedynie charakter informacyjny.
OFERTA CENOWA AKTUALNA NA DZIEŃ 24-11-2025 I OBOWIĄZUJE DO DNIA 24-11-2025
Sprawdź zainteresowanie tym ogłoszeniem
Wyświetlenia
Data dodania
Ostatnio widziany
Obserwujących
Wysłane zapytania
Odsłony telefonu
Powiadom o podobnych ogłoszeniach
Lokalizacja: Karwiany
Kategoria: Nieruchomości » Domy » Sprzedaż
Cena: od 764000 zł do 1034000 zł Powierzchnia : od 110 m2 do 148 m2
Chcę otrzymywać powiadomienia o nowych ofertach
- Wypromuj ogłoszenie
- Zgłoś naruszenie
- Drukuj ulotkę
- Edytuj/usuń ogłoszenie
- Udostępnij ogłoszenie
- Dodaj na Facebook
































